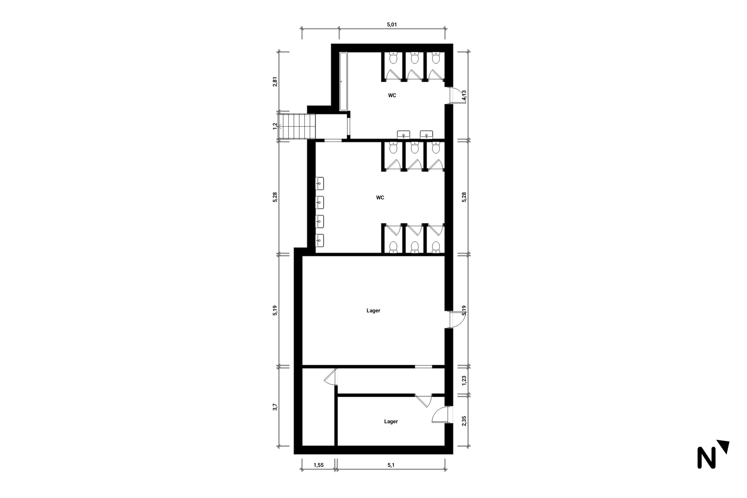
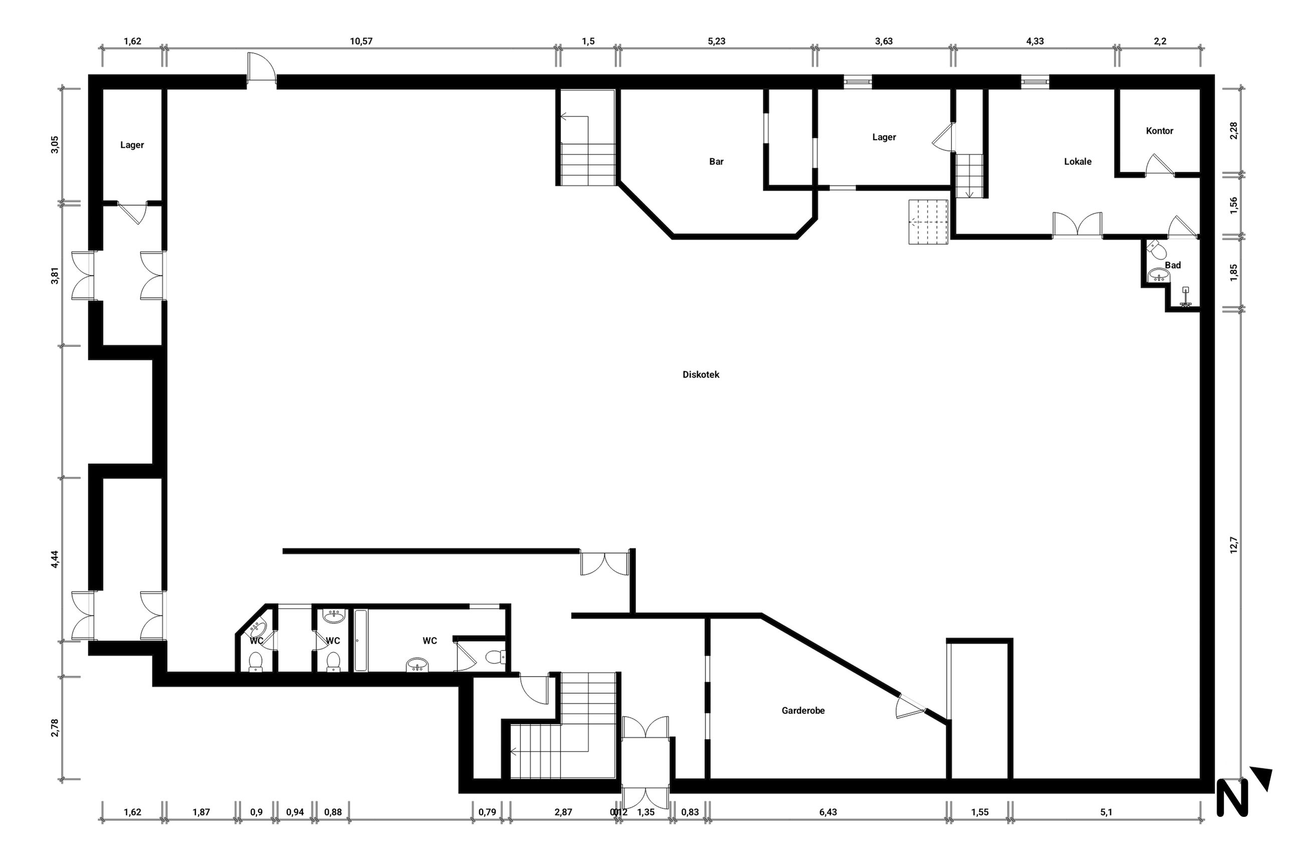
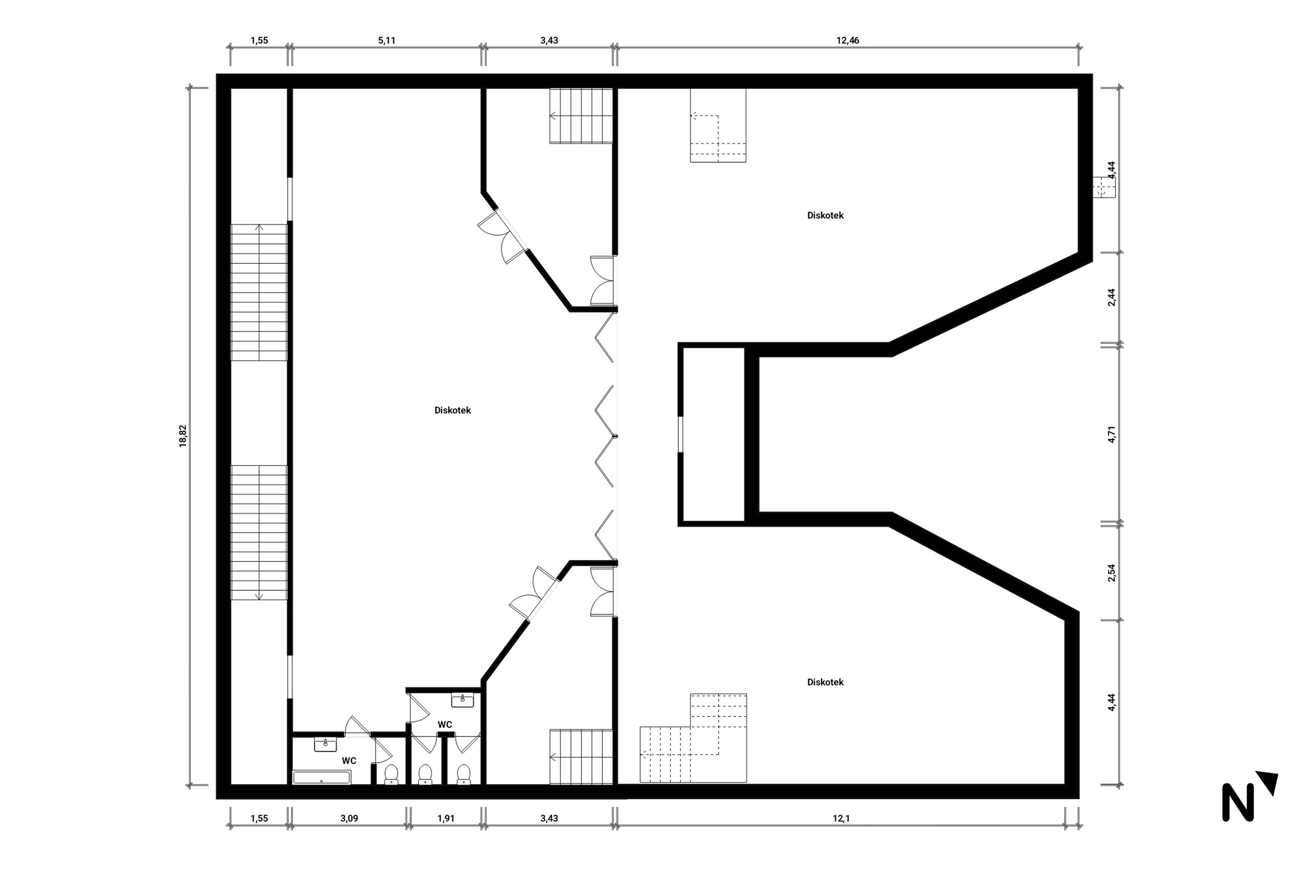
Velkommen til en sjælden perle i hjertet af Nykøbing F., hvor historie og moderne underholdning mødes. Denne imponerende ejendom, beliggende lige overfor banegården, tilbyder en unik mulighed for at eje eller leje et stykke lokal kulturarv. Med sine generøse 881 kvadratmeter fordelt på flere plan, har denne bygning været hjemsted for byens mest populære diskotek, der i april 2025 blev hædret som Danmarks bedste natklub. Det er ikke kun et sted med minder om uforglemmelige nætter, men også en ejendom fyldt med muligheder.
Ejendommen kan fortsætte sin succesfulde drift som natklub ved at købe det eksisterende inventar og videreføre den pulserende atmosfære, der har gjort stedet til et samlingspunkt for festglade gæster fra nær og fjern. Men mulighederne stopper ikke her; de rummelige lokaler giver også rig lejlighed til at tænke kreativt omkring fremtidige anvendelser. Overvej eksempelvis muligheden for at transformere stedet til kontorlokaler eller lejligheder.
Med sin centrale placering er ejendommen ideel for dem, der ønsker nem adgang til offentlig transport samt byens øvrige faciliteter. Uanset om du drømmer om at drive din egen natklub eller søger en investering med udviklingspotentiale, tilbyder denne ejendom en fleksibilitet og karakter få andre steder kan matche. Grib chancen nu og bliv ejer af dette unikke stykke fast ejendom i Nykøbing F.
Download filer om ejendommen
Salgsopstilling samt øvrige dokumenter der er til rådighed.

