Velkommen til Hans Ditlevsensgade 26.
Søger du en villa i attraktivt område, og hvor en børnefamilie ville kunne stortrives, så er denne ejendom måske noget for dig.
Her er du både tæt på skoven, byens faciliteter, indkøb og alt det praktiske, som gør at en børnefamilies hverdag fungerer så optimalt som muligt. Der er gå afstand til togstationen
Ejendommen har gennemgået en stor renovering, bl.a. i år 2022, hvor 1. salen er blevet etableret med nye spær, nyt tag og vinduer, 330 mm isolering, isoleret til kip, trapperum etableret indvendigt fra kælder til 1. sal. Nyt badeværelse etableret på 1. sal med gulvvarme.
Grunden er på 657 m2, pænt beplantet med lille forhave og en skøn have bag huset, som er ugeneret og anlagt til familie hygge, terrasse og varieret beplantning. Dejlig nem at holde.
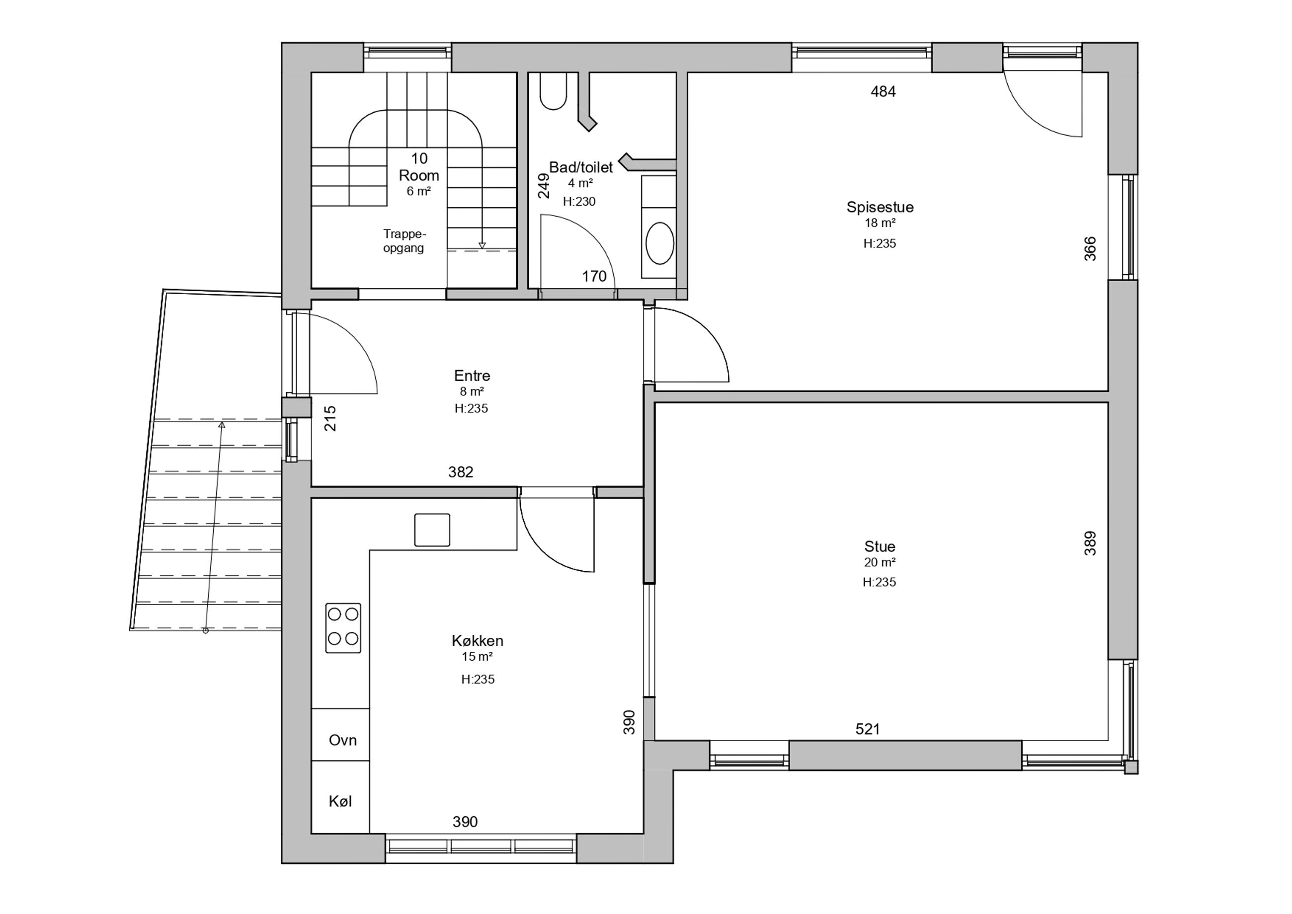
Huset har en god atmosfære, og har gode lysindfald. Indretningen er bestående af:
Entrè med klinker på gulv og garderobeskab. Dejligt køkken alrum med lyse elementer og trægulv. I åben forbindelse med køkken er en hyggelig stue, her er også trægulv. Spisestue med udgang til terrasse og haven. Badeværelse med bruseniche, vask, vedhængt toilet og gulvvarme.
Første sal er udnyttet med: Repos / fordelingsgang. Dejligt soveværelse, 2 pæne værelser. Flot badeværelse med bruseniche, vedhængt toilet, vaske og opbevaringsplads.
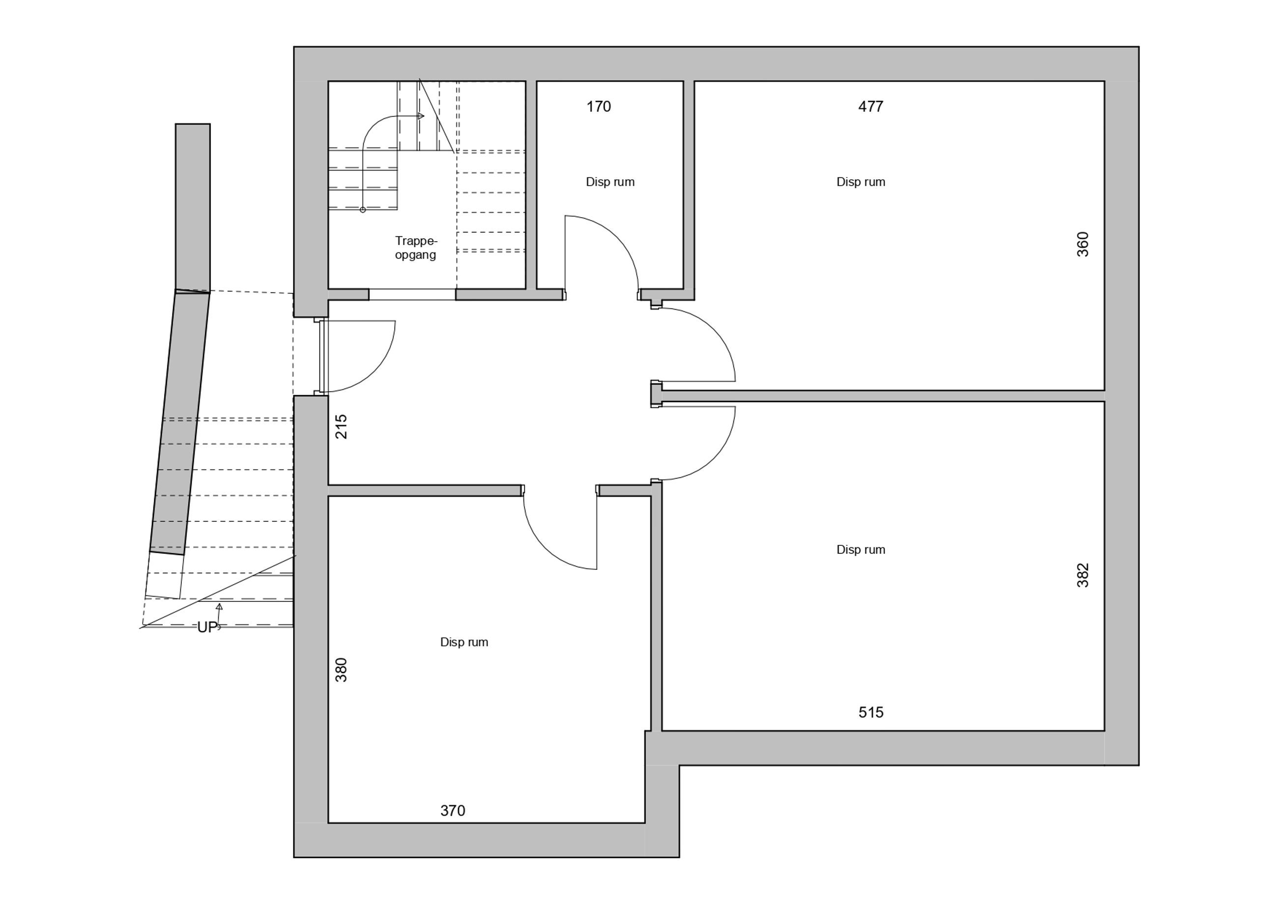
God kælder med god lofthøjde. Vaskerum og gode disponible rum, som har mange anvendelsesmuligheder.
Garage på ca. 15 m2.
En murmestervilla med eftertragtet beliggenhed.
Download filer om ejendommen
Salgsopstilling samt øvrige dokumenter der er til rådighed.

