Nu har du muligheden for at erhverve dig en charmerende rødstensvilla i Gedser by. Her er du beliggende i absolut gåafstand til den hyggelige lystbådehavn i Gedser, stranden og et stort naturområde som vokser vildt hvor man kan gå gode ture og opleve dyrelivet på tæt hold samt tæt på hverdagens gøremål i forhold til indkøb og offentlig transport.
Ejendommen er beliggende på en dejligt lukket og utrolig naturskøn grund på hele 1.432 m2. Boligen er indrettet som følgende:
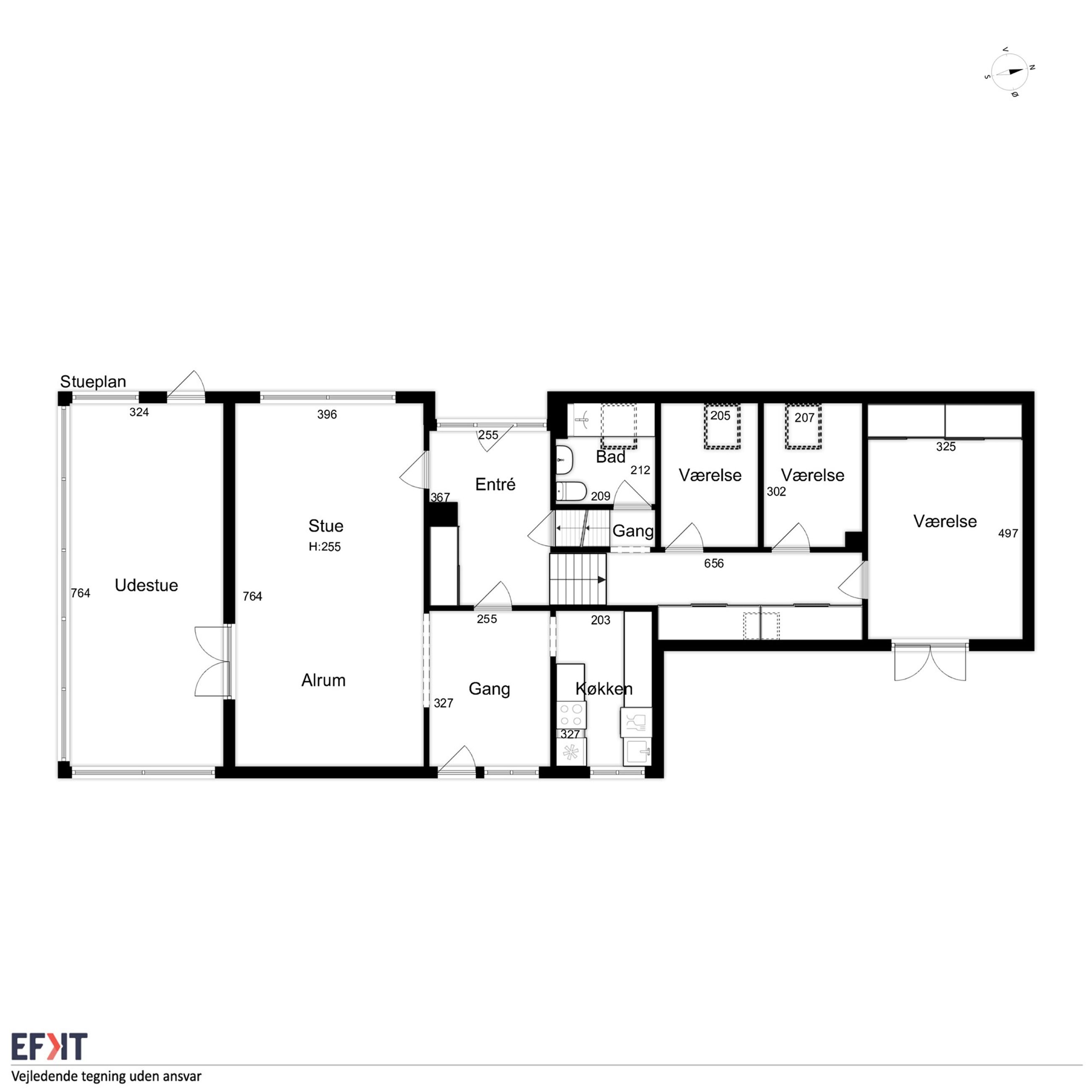
Du træder ind i den rummelige entré hvor du har god plads til fodtøj og overtøj. Herfra finder du trappe til kælder og trin op til forskudt plan med værelsesafdeling der byder tre gode værelser hvoraf det store soveværelse byder på en dejlig udsigt ud over haven. Ved værelserne finder du også badeværelse samt rigtig god skabsvæg.
Stueplan byder ydermere på mindre spisestue der ligger i åben forbindelse med det store og lyse stuemiljø. Herfra har du direkte udgang til den hyggelige og rummelige udestue. I stueplan har du også køkken.
Første salen er indrette med større opholdsstue/værelse samt disponibelt rum. Fra første salen har du også adgang til større loftrum.
I kælderen finder du flere gode disponible rum, samt udgang til haven.
Udvendigt på grunden har du en rigtig fornuftig garage, god carport og udhus.
Haven byder på flere frugttræer og hyggelige kroge hvor du virkelig kan finde ro. Den skal opleves!
Alt i alt en ejendom med muligheder og som kan benyttes som flexbolig!
Vi står klar med nøglerne, så tøv endelig ikke med at kontakte os for en fremvisning.
Download filer om ejendommen
Salgsopstilling samt øvrige dokumenter der er til rådighed.

