Velkommen til en unik investeringsmulighed i hjertet af den hyggelige købstad Stubbekøbing, hvor historie og moderne komfort smelter sammen. Denne imponerende ejendom, oprindeligt opført som Teknisk Skole for områdets kommende håndværkere i 1894, byder på en sjælden kombination af imponerende arkitektur og nutidens bekvemmeligheder.
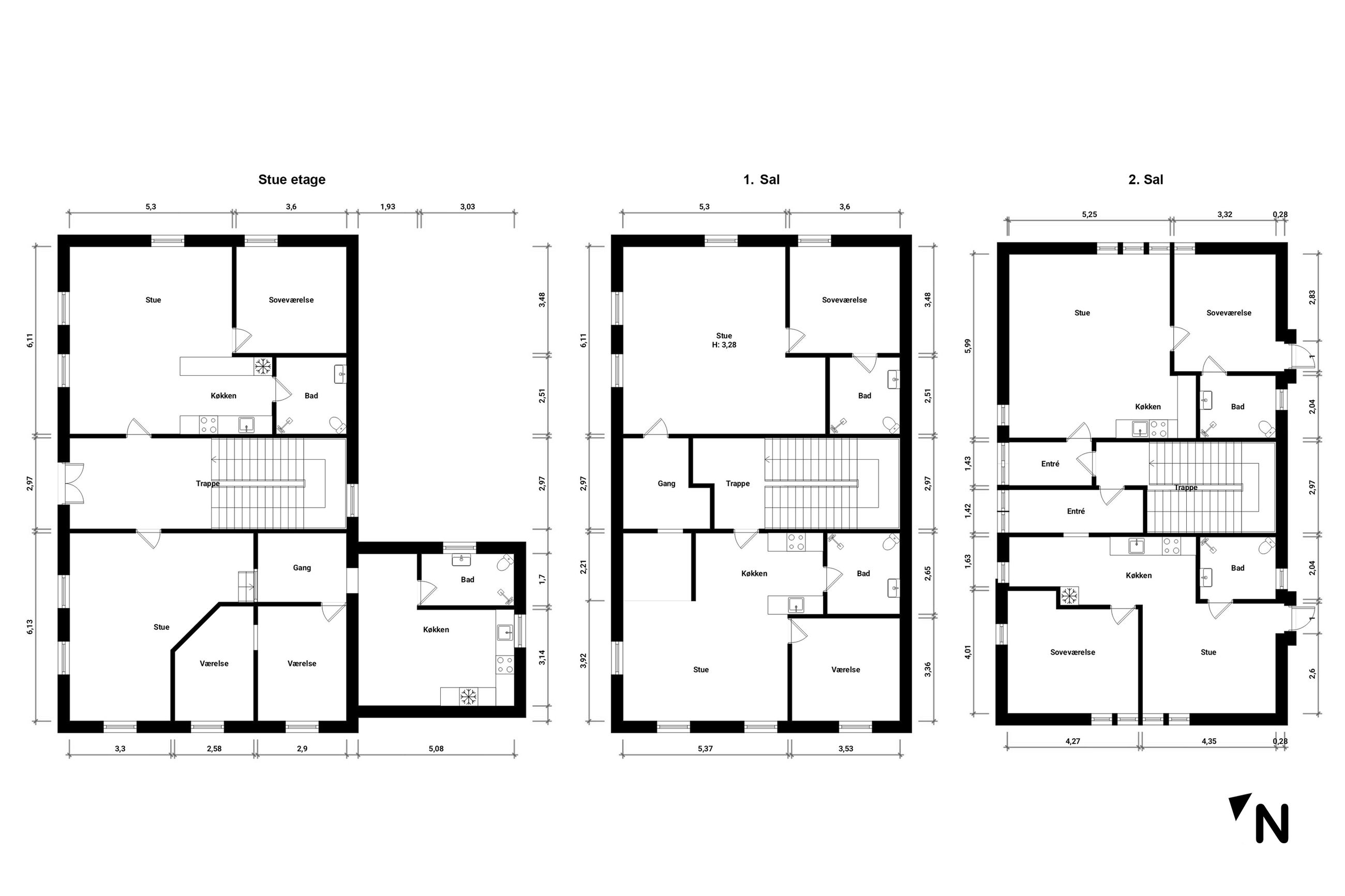
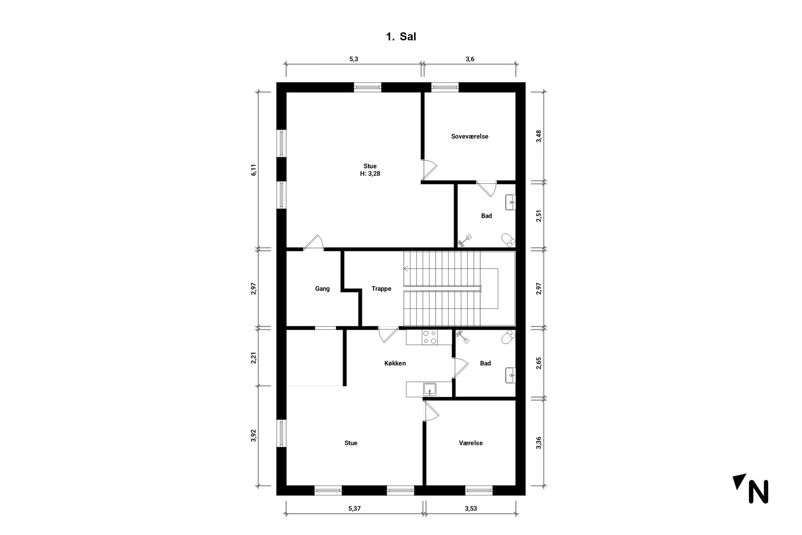
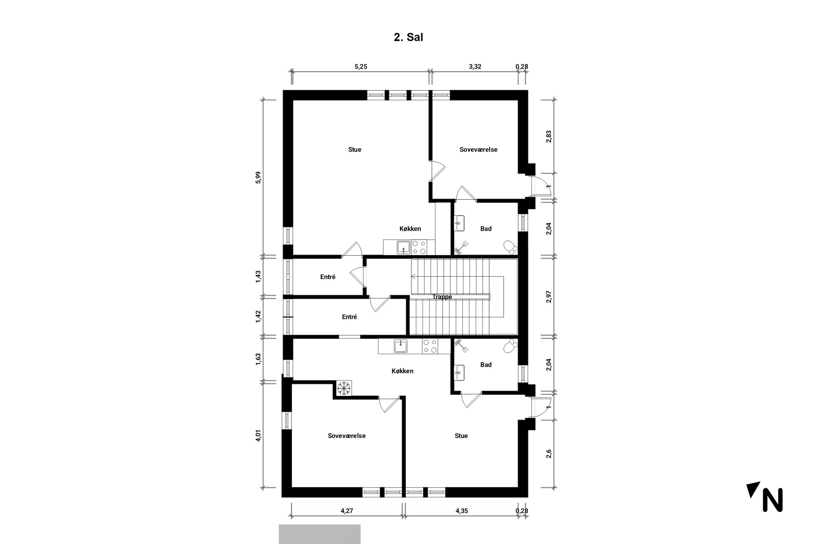
Ejendommen er tegnet af den kendte arkitekt Phillip Schmidt fra København, der har sat sit præg på mange flotte ejendomme. De mange håndværksmæssige detaljer viser, at det er en ejendom, hvor førende håndværksmestre, har vist deres kunnen. Ejendommen er opført på en tidligere eng kaldet ”Hestevanding”, deraf hestehovederne på tagrygningen. En utrolig repræsentativ bygning og med et samlet boligareal på hele 556 m2 fordelt over 6 lejligheder, er der rig mulighed for at udnytte denne perle til fulde.
Ejendommen består af seks charmerende lejligheder, som alle fremstår lyse og indbydende med smagfuldt indrettede køkkener og badeværelser. Ejendommen er fuldt udlejet, hvilket vidner om den store efterspørgsel efter kvalitetsboliger i området. 2. sals lejlighederne har loft til kip og synlige loftsbjælker, hvilket giver en god rumfornemmelse. På førstesalen er 2 lejligheder udlejet som én stor lejlighed – perfekt for dem, der ønsker ekstra plads, men kan nemt opdeles igen, hvis dette ønskes.
Beboerne nyder godt af parkeringsfaciliteter med rigelig plads til biler og cykler, ligesom de øvrige fællesarealer til ophold, er et stort gode. Beliggenheden kunne ikke være bedre; nem at komme til – også med offentlig trafik og med kort afstand til havnen samt diverse indkøbsmuligheder. Det er uden tvivl en af byens mest ikoniske bygninger.
Denne ejendom repræsenterer ikke blot en solid investering men også muligheden for at eje et stykke lokalhistorie med potentiale for yderligere udvikling eller modernisering efter behov. Grib chancen for at blive ejer af denne fantastiske ejendom og oplev selv den unikke atmosfære der følger med.
Download filer om ejendommen
Salgsopstilling samt øvrige dokumenter der er til rådighed.

